35, Bellbird Road, MOUNT ELIZA, VIC, 3930, Australia
Mount Eliza
Architectural Family Oasis
OFFER DEADLINE: TUESDAY 2ND SEPTEMBER AT 12 NOON
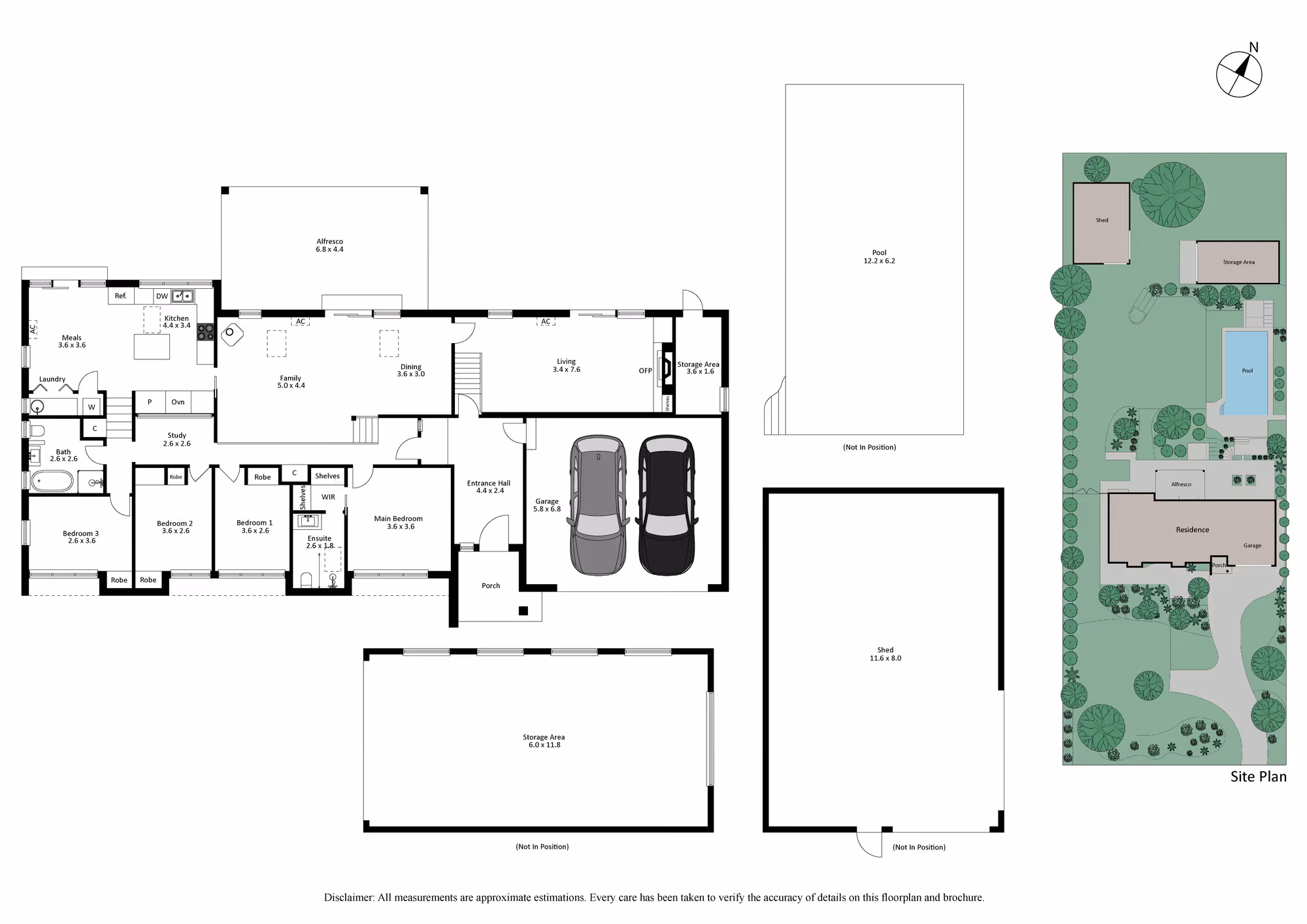
Architect-designed by the late award-winning Graeme Gunn, this striking split-level Merchant Builder home is a standout example of Late Modernist Australian design. Showcasing signature raked rooflines, exposed brick, timber features, and expansive glass, it blends timeless architecture with family functionality. Set on approx 2,700sqm block and backing directly onto Bellbird/Millbank Creek Reserve, it offers privacy, leafy views and gated access to scenic walking trails.
A huge solar-heated 12x6m pool with limestone surround creates a true resort-style backyard, complemented by expansive lawns and alfresco spaces perfect for kids and entertaining. Vehicle storage is exceptional, with a double garage, four-car brick garage, and a massive rear shed (11.7m x 7.8m) ideal for trades, hobbyists or collectors. Modern comforts include updated bathrooms, Velux skylights, polished timber floors, and 6.6kW solar system. A rare architectural lifestyle opportunity in the heart of Mt Eliza’s Woodlands.
Architect-designed by the late award-winning Graeme Gunn, this striking split-level Merchant Builder home is a standout example of Late Modernist Australian design. Showcasing signature raked rooflines, exposed brick, timber features, and expansive glass, it blends timeless architecture with family functionality. Set on approx 2,700sqm block and backing directly onto Bellbird/Millbank Creek Reserve, it offers privacy, leafy views and gated access to scenic walking trails.
A huge solar-heated 12x6m pool with limestone surround creates a true resort-style backyard, complemented by expansive lawns and alfresco spaces perfect for kids and entertaining. Vehicle storage is exceptional, with a double garage, four-car brick garage, and a massive rear shed (11.7m x 7.8m) ideal for trades, hobbyists or collectors. Modern comforts include updated bathrooms, Velux skylights, polished timber floors, and 6.6kW solar system. A rare architectural lifestyle opportunity in the heart of Mt Eliza’s Woodlands.









































.avif)






























