12, Sumak Road, MOUNT MARTHA, VIC, 3934, Australia
Mount Martha
Modern Living Designed for Entertaining
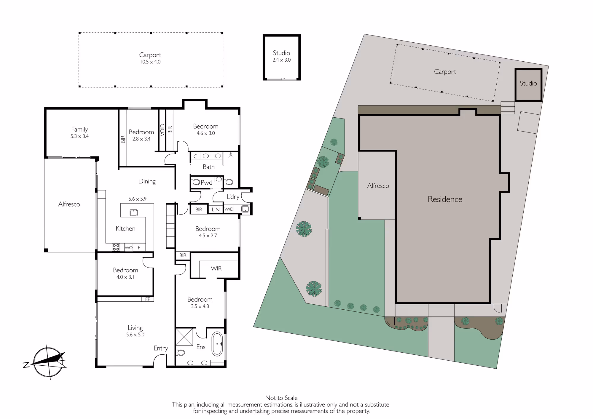
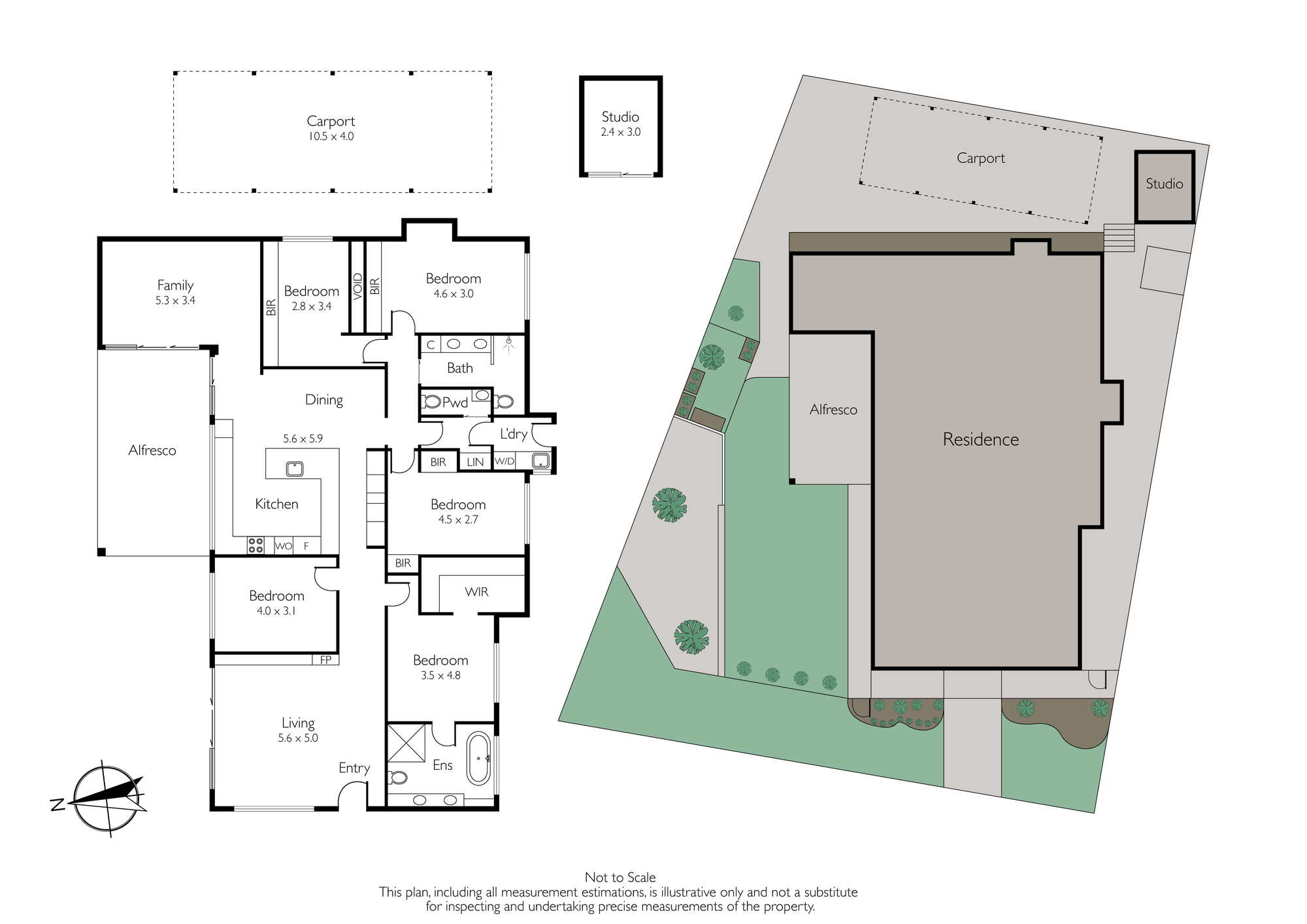
Expertly crafted for those seeking a sophisticated yet effortless lifestyle just moments from Bentons Square and Osborne Primary School, this recently completed residence with 7 years builders warranty redefines luxury on its generous 574sqm (approx.) corner parcel.
Instantly embraced by architectural ceilings and premium tiled floors, the four-bedroom residence transcends a secondary lounge and accommodation to offer an open-plan social domain that includes a sunlit living and dining area, and custom kitchen. Designed to meet the needs of avid entertainers, a premium range of features ensures entertaining is easy with an all-electric Belling Induction cook top, built-in microwave, dishwasher, and a breakfast bar.
A collection of stacker doors promotes unity across the indoor and outdoor spaces, as a covered alfresco carries festivities to the rear, alongside a secure, low-maintenance yard with elevated sun deck. Four bedrooms and two bathrooms, including a generous master with walk-in robe and sophisticated ensuite with dual vanity and feature tub, are complemented by a front formal lounge, dedicated office/study, powder room, dedicated laundry, and rear separate studio.
Ducted heating and cooling with individual zoning system, an alarm system, security cameras, electric fireplace and electric front gate enhance the overall living experience, while an address of total convenience keeps proximity to everyday essentials, including, Benton Junior College, Main Street’s vibrant eateries, Nunns Walking Track, public transport, and the extensive coastlines that frame the Mornington Peninsula.
Instantly embraced by architectural ceilings and premium tiled floors, the four-bedroom residence transcends a secondary lounge and accommodation to offer an open-plan social domain that includes a sunlit living and dining area, and custom kitchen. Designed to meet the needs of avid entertainers, a premium range of features ensures entertaining is easy with an all-electric Belling Induction cook top, built-in microwave, dishwasher, and a breakfast bar.
A collection of stacker doors promotes unity across the indoor and outdoor spaces, as a covered alfresco carries festivities to the rear, alongside a secure, low-maintenance yard with elevated sun deck. Four bedrooms and two bathrooms, including a generous master with walk-in robe and sophisticated ensuite with dual vanity and feature tub, are complemented by a front formal lounge, dedicated office/study, powder room, dedicated laundry, and rear separate studio.
Ducted heating and cooling with individual zoning system, an alarm system, security cameras, electric fireplace and electric front gate enhance the overall living experience, while an address of total convenience keeps proximity to everyday essentials, including, Benton Junior College, Main Street’s vibrant eateries, Nunns Walking Track, public transport, and the extensive coastlines that frame the Mornington Peninsula.






































.avif)






























