183, Wooralla Drive, MOUNT ELIZA, VIC, 3930, Australia
Mount Eliza
Weatherboard Charm with Stylish Family Design
Offering a front-row seat to breathtaking Peninsula vistas and captivating treetop views, this dual-storey weatherboard cottage unfolds a world of serene privacy that’s perfect for growing families. Its artfully renovated interiors dance in harmony with its reserve-side position and established gardens, delivering a true retreat within walking distance of Padua College, Peninsula Grammar and Mount Eliza Primary School.
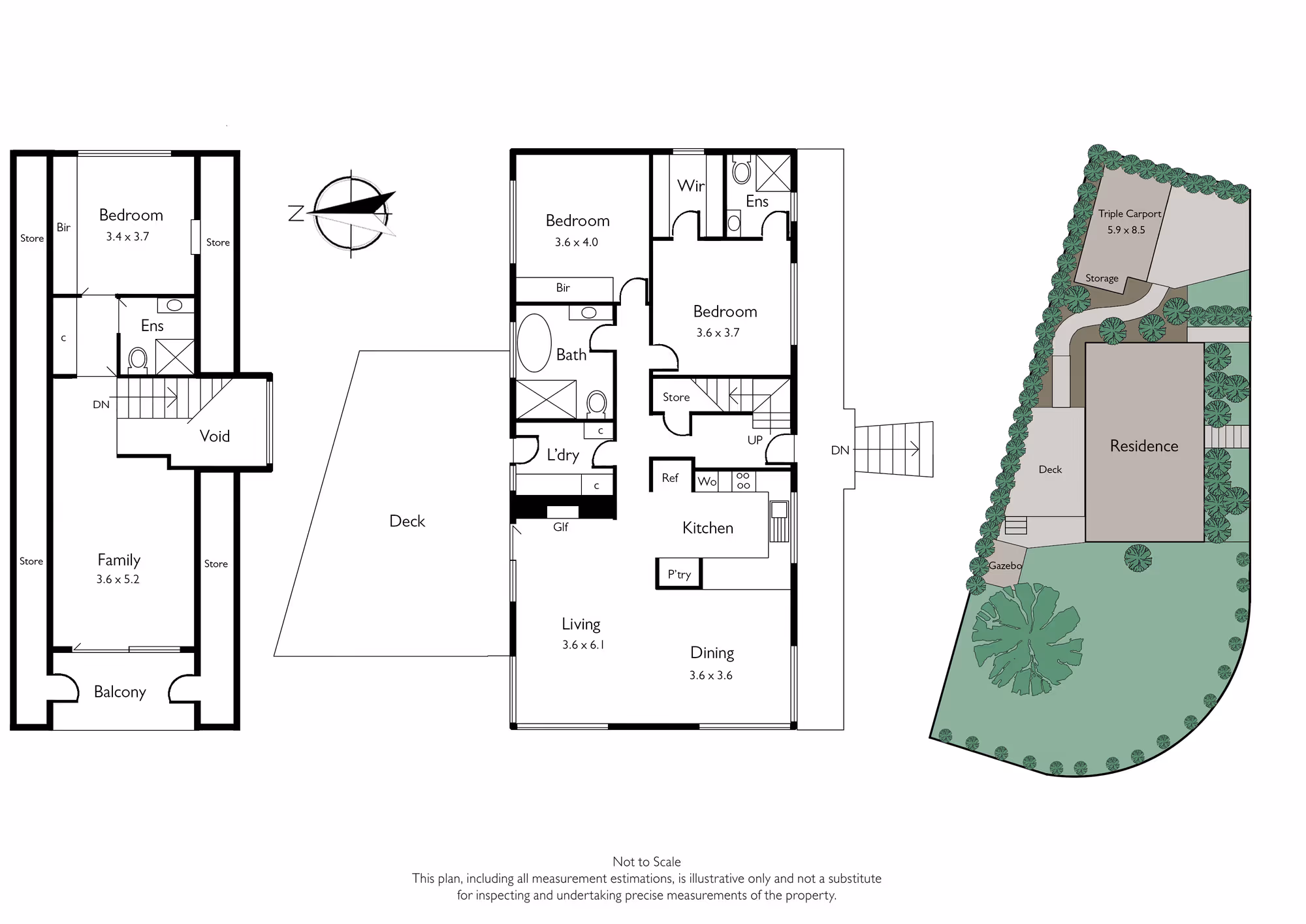
With every corner inviting cherished family moments, the light-filled home unfolds beyond a welcoming void entry. The open-plan living and dining area comes alive with large windows that invite the outdoors in. A gas log fireplace, VJ panelling and sheer full-height curtains add warmth, while a sliding door celebrates the summer breeze, opening to a large rear deck and connecting with a spacious lawn for kids to play.
The adjoining kitchen, featuring European appliances including a double oven and dishwasher, fosters lively conversation across the breakfast bar, while upstairs, a secondary lounge with a covered balcony and bay views provides a perfect retreat for those seeking a little separation. Choice in master suites provides a ground or first-floor retreat for couples, with each ensuite complete with shower, vanity with underbench storage, toilet, underfloor heating, and gold tapware. A third bedroom with large built-in robes sits alongside a main bathroom with a feature tub, shower, vanity with underbench storage, and underfloor heating.
With split-system heating and cooling throughout, a dedicated laundry, ample storage, large secure yard, underhouse workshop/storage, and triple carport with remote gate, this impressive weatherboard home sits within easy reach of Mount Eliza Village, Emil Madsen Reserve, Tully’s Corner Store and multiple walking trails.
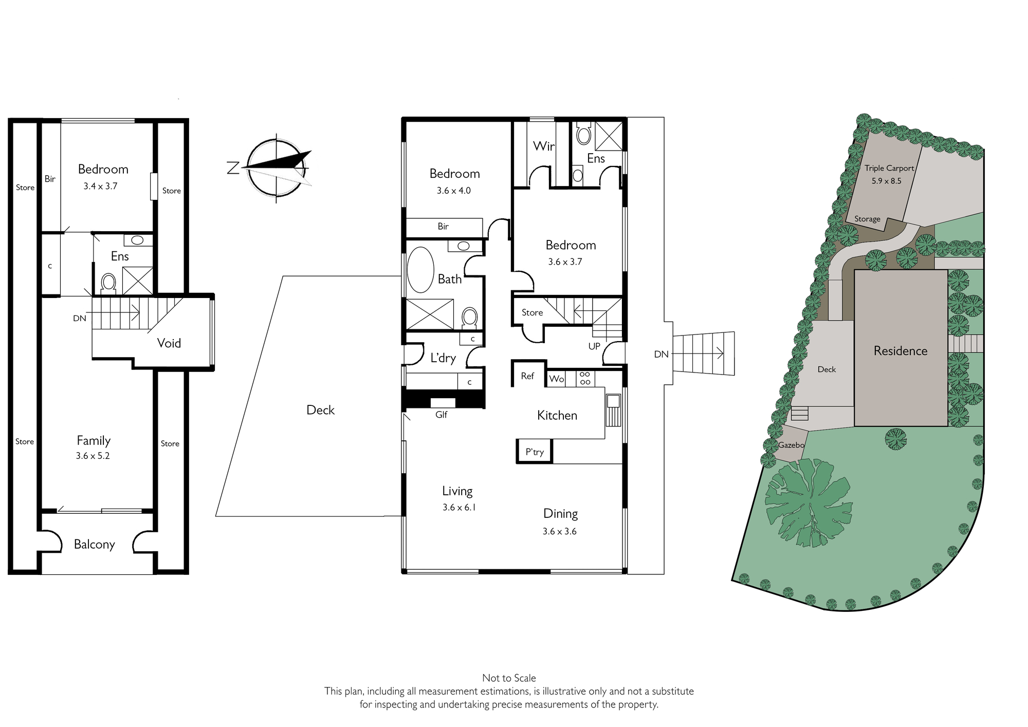
With every corner inviting cherished family moments, the light-filled home unfolds beyond a welcoming void entry. The open-plan living and dining area comes alive with large windows that invite the outdoors in. A gas log fireplace, VJ panelling and sheer full-height curtains add warmth, while a sliding door celebrates the summer breeze, opening to a large rear deck and connecting with a spacious lawn for kids to play.
The adjoining kitchen, featuring European appliances including a double oven and dishwasher, fosters lively conversation across the breakfast bar, while upstairs, a secondary lounge with a covered balcony and bay views provides a perfect retreat for those seeking a little separation. Choice in master suites provides a ground or first-floor retreat for couples, with each ensuite complete with shower, vanity with underbench storage, toilet, underfloor heating, and gold tapware. A third bedroom with large built-in robes sits alongside a main bathroom with a feature tub, shower, vanity with underbench storage, and underfloor heating.
With split-system heating and cooling throughout, a dedicated laundry, ample storage, large secure yard, underhouse workshop/storage, and triple carport with remote gate, this impressive weatherboard home sits within easy reach of Mount Eliza Village, Emil Madsen Reserve, Tully’s Corner Store and multiple walking trails.









































.avif)






























